猫と暮らす家の理想の間取りは?注意点や猫の特性を解説【実例あり】
- 公開日:2023/10/18
- 更新日:2023/10/18

家を建てるとき、ペットに猫がいれば猫も快適に暮らせる住まいをつくりたいですよね。その際、以下のような悩みを持つ方も多いのではないでしょうか。
- ●猫と暮らす家の間取りはどう考えれば良い?
- ●猫にとって安全で快適な家を建てたい!
- ●具体的にどんなことに気をつけて家づくりをすれば良い?
そこで、この記事では猫と暮らす家を建てる際の間取りの考え方や注意点を詳しく解説します。間取り図や写真付きでおすすめの事例も紹介するので、ぜひ参考にしてください。
Index
猫と暮らす家を作るなら知っておきたい5つの特性

猫と快適に暮らす家を作るには、猫の特性を理解しておくことが大切です。
- 猫は高い場所とせまい場所が好き
- 猫にはプライバシーと清潔さが必要
- 猫は体温調節が苦手
- 猫は環境の変化でストレスを受けやすい
- 猫によって性格は異なる
ここからは、上記の5つの猫の特性を詳しく解説します。
【特性1】猫は高い場所とせまい場所が好き
猫は、高い場所とせまい場所を好む性質があります。
広範囲を見渡せる高い場所は外敵や獲物を見つけやすく、野生動物の本能で安全だと感じるためです。
また、せまい場所は外敵からおそわれにくく身を隠しやすいため、リラックスしたり寝床にしたりする猫が多いです。
猫と暮らす家には、高いところやせまいところに猫専用の居場所を作ると良いでしょう。
例えば、キャットウォークやキャットタワーを設置したり、棚などの一部に猫が休憩できるスペースを設けたりすることが多いです。
なお、キャットウォークは猫が使い続けるうちにネジがゆるむことがあるため、定期的に確認やメンテナンスがしやすい位置に取り付けることも意識しましょう。
【特性2】猫にはプライバシーと清潔さが必要
猫はなわばり意識が強く、単独行動を好む動物です。
心を許した飼い主でも構いすぎるとストレスになることがあるため、姿を隠せる静かな場所を用意してあげましょう。
おすすめは、キャリーバッグを隠れ場所として設置しておくことです。日頃からキャリーバッグに慣れておくと、通院時や災害時にスムーズに連れ出せます。
また、猫は毛づくろいで体を掃除したり、トイレのあとに排泄物を砂に埋めて隠したりするほど清潔さを好む動物です。
猫のトイレは掃除しやすい場所に配置し、常に清潔に保つように気をつけましょう。
具体的には、水洗いする際に便利な洗面所や浴室の近くがおすすめです。換気扇がついていることが多く、においもこもりにくいでしょう。
なお、猫のトイレは猫の数+1箇所以上(1匹の場合は2箇所以上)設置するのが理想です。
【特性3】猫は体温調節が苦手
猫には体温調節が苦手という特性があります。特に夏場は体内に熱がこもりやすく、熱中症になりやすい動物です。
人間は汗をかくことで体から熱を放出しますが、猫は鼻や肉球以外に汗を出せる場所がありません。
暑いときには冷たい面に体をつけたり、呼吸で肺から熱を放出したりして体温を下げる必要があります。
そのため、猫と暮らす家は空調で温湿度を調整するよう徹底しましょう。猫にとって快適な室温は20〜28℃、湿度は50%~60%が目安です。
また、エアコン効率を高めるために家の断熱性能にこだわったり、猫が体を冷やしやすい土間床を作ったりするのもおすすめです。
なお、脱水症状を起こす猫も多いため、水飲み場は家のなかに複数作りましょう。
【特性4】猫は環境の変化でストレスを受けやすい
猫は環境の変化でストレスを受けやすい動物です。猫と暮らす家に新しく移り住む際は大きな負担がかかるため、慣れるまで注意深くケアしてあげましょう。
猫のにおいがついたベッドやタオルなどを持っていくと、比較的新しい環境になじみやすいです。また、新居で一時的に隠れてしまった場合はあせらずに出てくるまで待ちましょう。
なお、猫がストレスを感じていると、以下のような症状が見られます。
<猫の主なストレスサイン>
- ●食欲がなくなる
- ●過剰に体をなめる
- ●過剰に眠る時間が増える
- ●トイレの回数が極端に増えたり減ったりする
- ●マーキングする
- ●攻撃的になる
引っ越しなどの大きな環境の変化に限らず、部屋の模様替えやトイレの砂の種類が変わるなどの小さな変化にも敏感に反応することがあります。
日頃から猫の様子を観察し、ストレスサインに気付いたら原因を見つけてできるだけ早く取り除いてあげましょう。
【特性5】猫によって性格は異なる
最後に、猫によって性格が異なることを知っておきましょう。活発に動き回る猫もいれば、ほとんどの時間を寝て過ごすおとなしい猫もいます。
人間の存在を感じていないと不安になる猫もいれば、ある程度距離を保っていないとストレスがたまる猫もいるでしょう。
年齢や周囲の環境に影響を受け、猫の性格が変わることもあります。初めから猫に合った完全な家を作ることは難しいため、住みながら柔軟に対応していきましょう。
猫と暮らす家の理想の間取りは?チェックポイントを紹介

猫と暮らす家の間取りを考えるポイントを見ていきましょう。
猫と暮らす家の間取りのポイント
猫と暮らす家の間取りを決める際は、以下の3つのポイントをチェックしましょう。
間取りのチェックポイント
- 運動:猫が室内でも十分に運動できるか
- 休息:猫が安心して休める場所があるか
- 安全:猫が脱走したり事故にあったりする危険な場所はないか
- 収納:収納スペースを十分に確保できているか
- 環境:日当たりや通気性が良いか
【ポイント1】運動:猫が室内でも十分に運動できるか
猫は一日中室内で過ごすため、運動不足になりやすいです。運動量が不足すると、足腰の筋力が衰えたり肥満になったりする恐れがあります。
猫が健康に長生きするように、間取りを工夫して自然に動き回れるようにしてあげましょう。
具体的には、個別の部屋に細かく分割した間取りよりも、吹き抜けやスキップフロアを設けてひとつの広い空間を確保した間取りの方がおすすめです。
キャットウォークや家具などで段差を作れば、上下方向へ猫が運動するように誘導できます。
また、壁や扉で視線を遮られないため、家事をしたり家族でリラックスタイムを過ごしたりしながら猫を見守れるメリットもあります。
【ポイント2】休息:猫が安心して休める場所があるか
猫と暮らす家には、猫が安心して休める場所を確保することも大切です。
猫はストレスを強く受けると、免疫力の低下や膀胱炎(ぼうこうえん)などの病気を引き起こす可能性があります。
特に、猫がトイレや食事、睡眠する場所には、外部からの刺激が少ない静かな環境を用意してあげましょう。
具体的には、猫が主に過ごす居室の中心から少し離れた場所に、壁や家具などで囲った小さめのスペースを作るのがおすすめです。
なお、多頭飼いの場合は、猫同士の相性が悪くなったり病気になったりした際に隔離する必要があるため、いくつか個別の部屋を確保しておくことをおすすめします。
【ポイント3】安全:猫が脱走したり事故にあったりする危険な場所はないか
特に戸建ての家の場合は玄関や窓など外に出られる場所が多いため、猫が脱走しやすくなっていないかを入念に確認する必要があります。
間取りとしては、猫が過ごす部屋に外部へ直通する出口を設置しないよう意識しましょう。
また、おしゃれな家によく見られるスケルトン階段(面材をできるだけ省き、骨格だけで構成された階段)などは、猫が落下する可能性が高いため避けるのが無難です。
猫は幅のせまい場所もすり抜けられるため、近づけたくない場所は柵やフェンスではなく壁などの面状の物でふさぐことを意識してみてください。
【ポイント4】収納:収納スペースを十分に確保できているか
間取りを決める際は、収納スペースを重視する必要があります。
猫と暮らすと、トイレの砂や猫用の食品、おもちゃなどの多くの物を収納する場所が必要です。
あらかじめクローゼットや壁面収納などのまとまった収納スペースを確保しておくことをおすすめします。
【ポイント5】環境:日当たりや通気性が良いか
物件の場所を選ぶ際は、日当たりや通気性を重視しましょう。猫は室内の温度や湿度を適切に管理しないと体調を崩す可能性が高いためです。
できれば、南向きや東向きで開閉できる窓がある家や日当たりの良い土地を探すと良いでしょう。
猫は外の様子がまったく見えない閉ざされた環境だとストレスがたまるため、窓から自然などが見えるような部屋が理想です。
なお、ペット可の賃貸物件は敷金・礼金などの初期費用が高い傾向があります。退去時に内装の修理や消臭作業などの費用がかかる可能性が高いためです。
ペット可の賃貸物件そのものの数も少なく、希望の間取りの部屋を見つけるのは難しいでしょう。
上記のような条件を取り入れ、猫と長く快適に暮らすことを考えると、設計自由度が高い注文住宅はおすすめと言えます。
猫と暮らす家を作る際の注意点は?場所別に解説

ここからは、猫と暮らす家を作る際の注意点を場所別に見ていきましょう。
- ●外につながる場所|玄関・ベランダ・中庭など
- ●高低差がある場所|階段、吹き抜けなど
- ●水まわりスペース|キッチン・浴室・洗面所
- ●個別の部屋|リビング・個室
- ●家具・家電
猫と安全かつ快適に暮らすためにも、ぜひ参考にしてください。
外につながる場所|玄関・ベランダ・中庭など
猫と暮らす家を作る際に最も注意したいのは、玄関やベランダ、窓などの外部につながる場所です。
猫が脱走するのを防ぐために、以下のような対策をしておきましょう。
| 玄関・勝手口 |
|
| 窓や網戸 |
|
| バルコニー |
|
| 庭 |
|
猫は自分の体の高さの5倍程度まで飛び越える可能性があるため、脱出防止用のパーテーションやフェンスなどは1.7m以上にしておくと安心です。
高低差がある場所|階段、吹き抜けなど
家のなかで、階段や吹き抜けなどの大きな高低差がある場所は注意が必要です。
猫は平衡感覚が優れており、ある程度高い場所から落下しても体勢を整えて無事に着地できます。
しかし、6~7m(2階建て程度)を超える高さから落下するとけがや命の危機にいたる可能性が高いです。
猫と暮らす家を建てる際は、落下防止対策をして事故を未然に防ぎましょう。具体的には、フェンスやネットを設置する方法があります。
水まわりスペース|キッチン・浴室・洗面所
猫と暮らすうえで、キッチンは特に注意が必要な場所です。料理中に火や刃物を使うため、できるだけ猫を近づけない方が良いでしょう。
また、以下の食べ物は猫が食べると危険です。猫の手が届かない高い位置に戸棚を設置したり、ロック付きの収納を設置したりして保管することをおすすめします。
【猫が食べると危険なもの】※一例
| 食品名 | 危険な理由 |
| ネギ類 | 赤血球を破壊する成分が含まれており、猫が貧血などを引き起こす危険性がある。 |
| アボカド | ペルシンという成分により中毒を引き起こす危険性がある。 |
| 春菊、ほうれん草 | シュウ酸が含まれており、多量に摂取すると尿結石になりやすい。 |
| チョコレート、ココア | カカオに含まれる成分が中毒を引き起こす危険性がある。 |
| 香辛料(唐辛子など) | 猫の内臓に対して刺激が強く、胃腸障害などを引き起こす危険性がある。 |
このほか、猫が洗剤や漂白剤をなめたり、ゴミ袋をかんで飲み込んだりする危険性があります。できる限り小物を隠せるように、キッチンの収納は充実させましょう。
また、浴室や洗面所は水の事故が起こりやすいです。お風呂のお湯をためていて猫が溺れたり、洗濯機のなかに猫が入り込んだりする恐れがあります。
引き戸などの猫が開けにくいタイプの扉を選び、猫が簡単に侵入できないようにしておきましょう。
個別の部屋|リビング・個室
猫と暮らす家に個別の部屋を作る際は、誤って猫を閉じ込めないように対策しておく必要があります。
猫は予想外の動きをするため、空調を付けていない部屋に閉じ込めて熱中症になるなど事故につながることも少なくありません。
簡単にできる方法としては、扉にペットドアを付けるのがおすすめです。猫が好きなタイミングで移動できるためストレスがたまりにくく、誤って扉にはさまるリスクも減らせます。
また、猫がメインに過ごす部屋の床材や壁紙は、汚れても掃除しやすい素材を使うと良いでしょう。消臭効果のある素材を使えば、人間も猫も心地良く過ごせます。
家具・家電
猫と暮らす際は、家に置く家具や家電も慎重に選びましょう。猫は好奇心旺盛で予想外の動きをすることが多いため、事故につながる恐れがあります。
具体的には、以下の点を意識してみてください。
| 家具 |
|
| 家電 |
|
猫と暮らす家向けに作られた家具や家電も増えているため、ぜひ実際に使う場合をイメージしながら選んでみてください。
猫と暮らす家の実例5選

最後に、猫と暮らす家の実例を5つ厳選してご紹介します。どの家もおしゃれかつ猫がのびのびと過ごせる事例ばかりなので、ぜひ参考にしてください。
【事例1】全館床暖房で快適に猫と暮らす家


断熱性を極限まで高め、全館に床暖房を設置して室内の快適さを追求した家です。一年中心地良い環境で猫と暮らせます。
エアコンの風が直接当たるのを嫌がる猫も多いため、猫と暮らすならこの家のようにぜひ床暖房を取り入れてみてください。
リビングダイニングは吹き抜けになっており、開放感があるので猫ものびのび過ごせます。
また、玄関ホールと各部屋が扉で区切られており、猫が脱走しにくくなっているのも見習いたいポイントです。
【事例2】独立キッチンで安全に猫と暮らす家


リビングダイニングから独立したキッチンがある間取りの家です。猫から隔離された空間を確保できるので、料理に集中できます。
猫たちの様子を見ながら家事をしたい場合は、リビングダイニングとキッチンの間に半透明のロールスクリーンなどを取り付けるのがおすすめです。
また、この家にはリビングダイニングから出られる中庭があるのも魅力のひとつです。
高いフェンスやネットを設置して脱走できないようにすれば、猫がのびのび運動できるスペースになります。
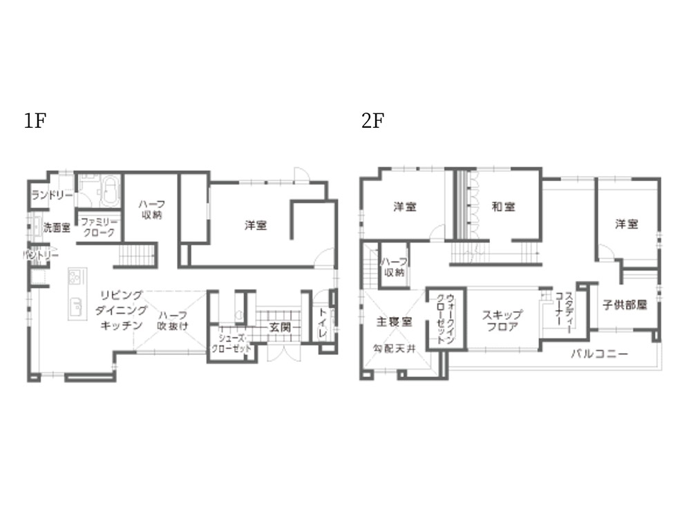
【事例3】大容量収納ですっきり美しく猫と暮らす家



スキップフロア(ひとつの階に複数の高さの床がある構造のこと)を活用した間取りが特徴の家です。
1階や2階に天井の低い収納スペースがあり、適度に視線が遮られるため猫と暮らす際に多様な使い方ができます。
例えば、猫用のトイレの砂や食料の保管場所にしたり、猫用トイレを置くスペースにしたり、猫がくつろぐスペースにしたりするのがおすすめです。
スキップフロアは部屋数を減らさずに収納スペースを確保できるため、猫と暮らす家を建てる際はぜひ検討してみてください。
【事例4】スマートシステムで環境に優しく猫と暮らす家


二世帯住宅で猫と暮らす家として、見本にしたい間取りです。
1階と2階の日当たりの良い南側に居室を配置しており、人間も猫も心地よく過ごせます。キッチンや水まわりと居室が扉で分かれている点も猫と暮らす際に取り入れたいポイントです。
また、この家はHEMS(Home Energy Management System)を導入したスマートホームです。
HEMSとは、電気設備や家電を一元管理することで電気の使用量を見える化したり自動制御したりする仕組みを指します。
猫との暮らしでは空調や家電をよく使うため、省エネかつ経済的に過ごせるスマートホームはおすすめです。
【事例5】複数の猫と暮らす部屋数の多い家



猫の多頭飼いを予定している方におすすめの間取りの家です。
1階と2階にそれぞれLDKがあり、部屋数も多いので猫同士の相性が悪くても隔離して暮らせます。
各部屋は南側の窓を大きく確保しているため開放感があり、猫が一日中室内で過ごしていてもストレスが少ないでしょう。
玄関に入ってすぐの場所に和室があり、来客時に猫と接触せずに案内できる動線になっているのも見習いたいポイントです。
理想の猫と暮らす家を作ろう

猫と暮らす家の間取りを決める際は、以下の3つのポイントをおさえましょう。
- 猫の運動量を確保する
- 猫の休息場所を確保する
- 猫の安全を確保する
猫は高い場所やせまい場所を好むため、吹き抜けやキャットウォークを活用して上下運動をうながすのがおすすめです。
また、静かで清潔な休息場所やトイレを用意し、リラックスできるようにしましょう。
家のなかには猫にとって危険な場所が多いため、扉やロックをして近づけない対策も欠かせません。
ただし、猫の性格や好みは年齢などで変わることがあり、初めから完璧な家を建てることは難しいです。
日々ストレスサインが出ていないかを見守りながら、猫に合わせて理想の家に育てていきましょう。
執筆・情報提供

吉本えり
二級建築士・整理収納アドバイザー1級資格保有。大学院まで建築学を専攻し、ハウスメーカーでの勤務を経てWebライターとして独立。建築、不動産、インテリアなど住まいに関する記事を執筆しています。ストレス解消法は家中の整理整頓と掃除をすること。おうち時間を快適に楽しく過ごすためのコンテンツをお届けします。



